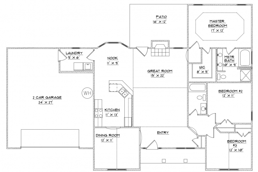
Home Plan Detail

Bridgeport
Square Footage 1,681

Bed 3
Bath 2
Garage 2

Levels: 1


Elevation renderings, floor plans and pdf sheets are for illustrative purposes only and may differ from final layout. Please contact us for more details.



Floorplan